До Житомирського окружного адміністративного суду звернувся в.о. керівника Житомирської окружної прокуратури в інтересах держави із позовом до Станишівської сільської ради Житомирського району, релігійної організації «Релігійне братство «Центр святого сімейства з назарету» про визнання протиправним та скасування рішення з підстав протиправного надання дозволів на виготовлення проєкту землеустрою щодо відведення земельної ділянки.
Ухвалою від 22 березня 2024 року суд відкрив провадження за позовом прокуратури.
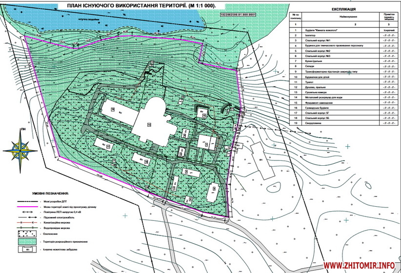
Очевидно мова йде про 5 га землі в лісі біля села Зарічани: 6 березня 2023 року на сайті Станишівської громади було оприлюднене оголошення про початок проведення процедури громадських слухань щодо врахування громадських інтересів під час розроблення містобудівної документації: «Детальний план території земельної ділянки площею 5 га під розміщення об’єктів оздоровчого комплексу за межами населеного пункту с. Зарічани Станишівської територіальної громади, Житомирського району, Житомирської області». Платила за розробку детального плану території релігійна організація «Релігійне братство «Центр святого сімейства з назарету» (скриншоти зі схемою розташування земельної ділянки див. нижче).

Релігійна організація «Релігійне братство «Центр святого сімейства з назарету» зареєстрована в м.Рівне в липні 2021 року, керівником є житомирянин Сорочинський Франц Тадеушович. Про адміністративно-персональні зміни в організації, яка знаходиться у с.Зарічани, інформує Київсько-Житомирська дієцезія Римо-католицької церкви.
Як повідомляв Житомир.info, в липні 2023 року Житомирський окружний адміністративний суд задовольнив позов прокуратури та визнав протиправним і скасував рішення Станишівської сільської ради про надання МБФ «Відкрите серце» дозволу на відведення 2,5 га землі під придбаною в 2003 році базою відпочинку в с.Зарічани.




















